Hasta 11 personas serán seleccionadas para vivir y trabajar en este espacio donde se ofrecerá formación tutorizada y asesoría a sus proyectos
El Ayuntamiento de Pamplona va a poner en marcha en el edificio del número 59 de la calle Mayor el primer coliving de la ciudad para promover el emprendimiento económico y social y el desarrollo de modelos de negocio innovadores, y lo va a hacer con la colaboración de la Universidad Pública de Navarra con quien hoy ha firmado un convenio. El concejal delegado de Ciudad Habitable y Vivienda, Joxe Abaurrea, el director de Transparencia, Innovación y Política Lingüística, Arturo Ferrer, y la directora gerente de la Fundación Universidad-Sociedad de la Universidad Pública de Navarra, Iosune Pascual, han participado hoy en la visita al inmueble que va a acoger esta nueva iniciativa municipal 59 y han ofrecido todos los detalles sobre los objetivos, el modo de funcionamiento de los tres espacios y la forma de selección de los proyectos participantes.
La iniciativa se denomina formalmente ‘Más Pamplona-Iruña: Coliving -emprendimiento y Laboratorio Urbano’. Además de la residencia y el trabajo específico con las personas emprendedoras, pretende desarrollar toda una experiencia de trabajo con la ciudadanía en la definición de problemáticas sociales y en la puesta en valor de posibles soluciones que se puedan convertir (o no) en proyectos de emprendimiento social y/o empresarial. Además se pretende vincular el proyecto a otras posibles líneas de trabajo que viene desarrollando el Ayuntamiento.
La licitación del contrato de obra para la adecuación del nuevo espacio se prevé para abril y la ejecución de misma comenzaría en mayo con una duración prevista de tres meses. El plan es que las personas emprendedoras puedan estar residiendo en el edificio en septiembre del año próximo y el tiempo máximo de residencia se ha fijado en un año prorrogable hasta dos más. La previsión de inversión es de 400.000 euros. En cuanto al diseño del proyecto de coliving, éste ha costado 66.500 euros de los que el 80% lo ha aportado la obra social de La Caixa dentro del programa ‘Innova social’.
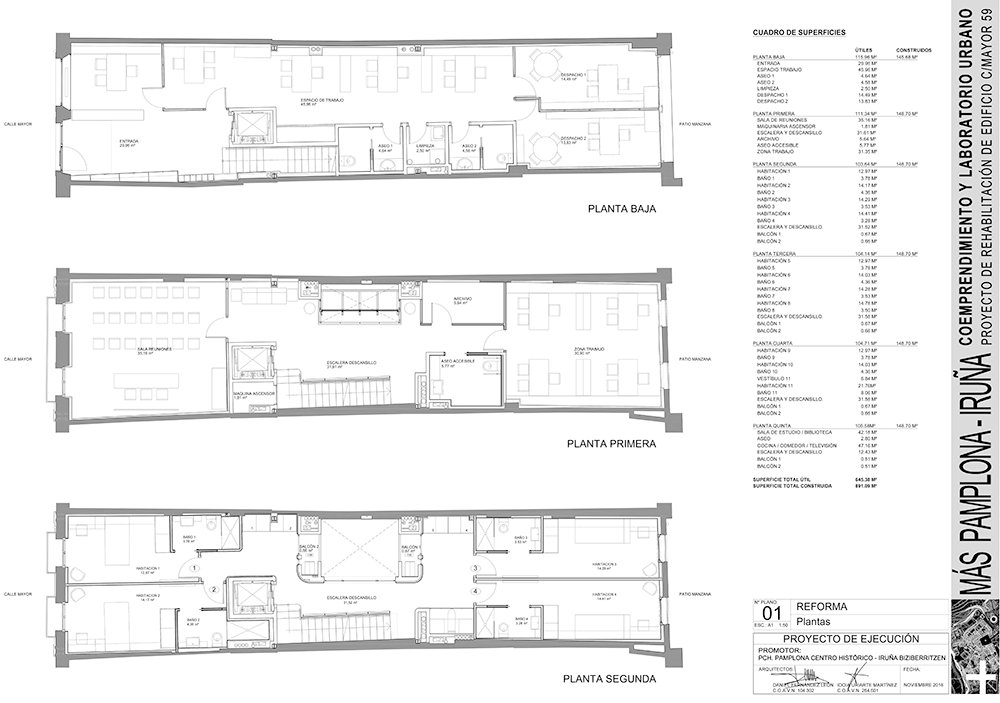
Un edificio de 645 metros cuadrados útiles para “atraer y retener el talento”
Con el coliving de calle Mayor 59 se ofrecerá residencia y formación con tutorías a las personas integrantes de una selección de proyectos de emprendimiento innovadores en el ámbito de la smart-cities, la economía circular, la innovación social y las industrias creativas y culturales. En este edificio que cuenta con 645,38 metros cuadrados útiles (891 totales) repartidos en cinco alturas, podrán vivir y trabajar hasta 11 personas. El bloque anteriormente acogió en sus dos primeras plantas las oficinas de Pamplona Centro Histórico y la Oficina de Vivienda que a mediados de año trasladaron sus sedes a la calle Descalzos, mientras el resto del inmueble no tenía uso.
Tras el nuevo uso previsto, en la planta baja se dispondrán 11 puestos de trabajo móviles en una oficia abierta de 45 m2, una oficina cerrada para la persona responsable y un despacho. Se completa con un aseo y un pequeño almacén. La primera planta se distribuirá entre una sala de reuniones para 25-30 personas, almacén, aseos y una oficina abierta con 5 puestos de trabajo. Tanto la segunda como la tercera y la cuarta planta serán las residenciales y contarán con 4 habitaciones cada de unos 20 m2. Habrá una habitación adaptada para personas con discapacidad. Cada habitación-apartamento estará amueblado, contará con climatización y dispondrá de baño. Por último, en la quinta planta se situarán la cocina con salón-comedor de 47 m2 y la sala de lectura y estudio. La cocina y la lavandería así como los espacios de esparcimiento y los medios audiovisuales serán compartidos.
Según ha destacado en su intervención el responsable de Ciudad Habitable, el nuevo espacio “permitirá la colaboración entre entidades públicas y privadas y acogerá a las personas emprendedoras y a las entidades sociales y empresariales que junto al Ayuntamiento puedan satisfacer necesidades relativas a la ciudad A la vez servirá para atraer y retener el talento y posicionará la marca Pamplona como ciudad inteligente que dota a la ciudadanía de herramientas de innovación en el desarrollo del futuro de la misma”.
Un año de estancia gratuita con dos años más de posible prórroga
Está previsto que hoy mismo se haga pública la convocatoria de bases del coliving. A partir de que estas bases sean publicadas en las página web del Ayuntamiento de Pamplona y de la Fundación Universidad-Sociedad de la UPNA las personas interesadas en participar en el proyecto contarán con un mes para presentar sus iniciativas. Podrán presentarse a la selección las personas físicas mayores de edad y las empresas de menos de 3 empleados que se hayan creado en un plazo a inferior a un año a contar desde la publicación de las bases. Las candidaturas podrán ser individuales o grupales siendo los grupos menores de 3 personas. Cada persona podrá presentar el número de proyectos que desee.
Un comité interdisciplinar presidido por el titular de Ciudad Habitable y Vivienda será el encargado de valorar las propuestas que lleguen. Junto al presidente tomarán parte de este órgano los gerentes de la Fundación Universidad-Sociedad (UPNA) y del Ayuntamiento, la dirección de la Oficina Estratégica y tres personas representativas de los agentes emprendedores, de los colectivos sociales y de participación y del tejido empresarial. Para valorar los proyectos se tendrán en cuenta los conceptos de pertinencia, compatibilidad, idoneidad, valor añadido, modelo de negocio o impacto social. Por ejemplo, en el último caso se primará que se impulsen valores como solidaridad, democracia, dignidad humana, sostenibilidad ecológica, transparencia en la cadena de suministro, redistribución de las ganancias o relaciones éticas con la clientela, entre otros.
Las personas seleccionadas podrán residir gratuitamente en el edificio durante un año, plazo ampliable a dos más (éstos ya sería pagando parte del alquiler). Asimismo formarán parte del laboratorio ciudadano en donde podrán detectar oportunidades de mejora y conocer las necesidades de la ciudadanía y de la propia ciudad y accederán a la información del observatorio urbano. Las estadías contarán con una primera parte formativa, en esta ocasión hasta abril, y a partir de septiembre, cuando las obras de adecuación hayan terminado, se iniciará el primer año de residencia.
Sede de un “laboratorio ciudadano” para detectar proyectos de interés común
Y es que el proyecto de coliving incluye también lo que se ha dado en denominar “laboratorio ciudadano”, un espacio de trabajo regentado por la UPNA en el que se fomentará el encuentro entre distintos agentes, las instituciones públicas y la ciudadanía para dar respuesta a las necesidades y problemáticas ciudadanas y para trabajar en las líneas estratégicas de la ciudad.
Este “laboratorio ciudadano” primará aspectos como la innovación social (las soluciones parten de las personas y de su conocimiento), el emprendimiento social (desarrollo de modelos de negocio que responden a necesidades sociales y a la obtención de valor social y económico) y la cocreación. Será un espacio abierto pensado para la colaboración de la ciudadanía, para aprender unas personas de otras y generar y desarrollar proyectos, vinculando, fundamentalmente, innovación social y tecnológica. Se crearán diferentes grupos de trabajo para abordar los temas que surjan y existirá un gestor del observatorio que ejercerá de dinamizador. Para ponerlo en marcha se organizarán talleres abiertos al tejido empresarial y social y a la ciudadanía, de manera que las personas interesadas podrán entrar a formar parte de los grupos de trabajo.
El laboratorio ciudadano se centrará en el análisis e identificación de ideas y propuestas de trabajo ligados al bien común y su acción se complementará con el trabajo de “observatorio urbano”, una tarea que se centrará en identificar líneas de apoyo al emprendimiento, la transferencia de conocimiento con otros proyectos y la obtención de posibles líneas de financiación.
Fruto de la colaboración interinstitucional
El proyecto de coliving de Mayor 59 se inscribe en el contexto de trabajo impulsado por el Ayuntamiento de Pamplona en el marco del Plan Estratégico Urbano. El proyecto ha contado con la colaboración de la UPNA, a través de su Fundación, y del proyecto Demola, fomentado por Campus IBERUS del que forman parte la Universidad Pública de Navarra y las de La Rioja, Zaragoza y Lleida.
Para poder poner en marcha este proyecto el Ayuntamiento ha firmado un convenio con la Fundación Universidad de la UPNA en el que se utiliza la subvención obtenida de la Fundación Caja Navarra – Obra Social la Caixa dentro del programa ‘Innova social’ que ha ascendido al 80% del proyecto presentado con un presupuesto de 66.491 euros. La financiación obtenida ha sido de 54.500 euros. Con estos fondos se pondrá en marcha todo el programa de formación y tutorización y se creará un puesto de gestor técnico del laboratorio ciudadano y del observatorio urbano.

Deja un comentario